Group 2

Zvýhodnená cena platná do vypredania 50% bytov

Voľný

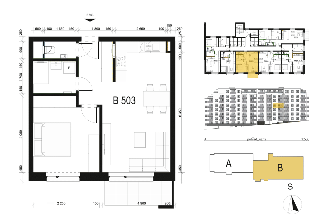
Byt: B503

5. podlažie - Vstup B / 2 izbový

Celková výmera

55,34 m2

Chodba

5,37 m2

WC

1,49 m2

Kúpeľňa

3,91 m2

Obývacia izba a kuchyňa

23,37 m2

Izba 1

13,30 m2

Balkón

4,60 m2

Pivničná kobka

3,30 m2

Cena

167 900 €

Zvýhodnená cena platná do vypredania 50% bytov

162 863 €

Akcia 3% vám teraz ušetrí: 5 037 €

Cena s DPH

Ku každému bytu je potrebné si dokúpiť minimálne 1 vonkajšie parkovacie miesto (od 10 500,-€) alebo garážové státie (od 18 000,-€).

Mám záujem Parkovanie Katalóg štandardov

Bezpečnostné protipožiarne s požiarnou odolnosťou s rozmermi 900/2020 mm, viacbodové uzamykanie osadené do oceľovej zárubne.

Súčasťou vybavenia sú bytové interiérové dvere značky Centurion, s možnosťou výberu z farebných variantov z ponuky investora.

Finálne nášľapné vrstvy sú súčasťou vybavenia bytov v kúpeľni, WC a na terasách. V kúpeľni a WC navyše s možnosťou farebnej kombinácie obkladu a dlažieb od renomovaného výrobcu Villeroy&Boch rada ATLANTA. Terasy prízemných bytov budú zhotovené z betónovej terasovej dlažby

V obytných miestnostiach je betónový poter s finálnou povrchovou úpravou. Finálnu povrchovú úpravu v obytných miestnostiach tvorí laminátová podlaha EGGER s možnosťou výberu z farebných variantov z ponuky investora.

Zariadenie toalety a kúpeľne doplnia dizajnové prvky od výrobcov Villeroy&Boch a GROHE.

Interiérový komfort zabezpečia zvukovo a tepelno-izolačné trojsklá vsadené do 6 komorového profilu.
Z exteriéru hnedo-sivý odtieň a z interiéru biely.

Bytový dom bude napojený na optickú sieť (internet + TV) s vyvedením optickej zásuvky v každom byte.

Súčasťou štandardu bude SMART video vrátnik.
Zásuvky a vypínače budú predpripravené pre budúcu inštaláciu ovládacích SMART zariadení.

Dodávka tepla a TÚV bude do objektu zabezpečená prostredníctvom kombinácie tepelného čerpadla (vzduch-voda), výmenníkovej stanice a zásobníkov na TV a ÚK.

Vykurovanie a chladenie bytov bude zabezpečené stropným systémom kúrenia a chladenia. Regulácia teploty bude riešená samostatným termostatom v každej izbe.

V kúpeľni a WC bude inštalované teplovodné podlahové vykurovanie a osadený radiátor doplnený výhrevnou elektrickou špirálou.

Postup financovania

  1. 20% podpis Zmluvy o budúcej kúpnej zmluve
  2. 20% zápis rozostavanej stavby do katastra
  3. 50% právoplatné kolaudačné rozhodnutie
  4. 10% dokončenie do štandardu

Procesom financovania
Vás bezplatne prevedie:

Rudolf Franek

0905 164 957
franek@macula.sk

Všetko potrebné vybavíte na jednom mieste.

uver

Úver

poistenie

Poistenie

vinkulacia

Vinkulácia

kataster

Kataster

Hypokalkulačka

10 000 € 205 000 € 400 000 €
33 580 205 000 € 400 000 €
10 000 € 205 000 € 400 000 €
3 % 4 % 5 %
%
10 20 30
Rok.

Mesačná splátka:0,00 €

sporitelna-logo

Slovenská sporitelňa je financujúcou bankou projektu ktorá má pre klientov pripravené zvýhodnené podmienky hypotekárneho financovania.

Procesom financovania
Vás bezplatne prevedie:

Rudolf Franek

0905 164 957
franek@macula.sk

Všetko potrebné vybavíte na jednom mieste.

uver

Úver

poistenie

Poistenie

vinkulacia

Vinkulácia

kataster

Kataster

1
Kontakt

Dohodnutie stretnutia s predajcom investora.

2
Zmluva o budúce zmluve

Podpis zmluvy o budúcej kúpnej zmluve s úhradou 20% kúpnej ceny.

3
Štandard bytu

Výber prevedenia štandardu, v ktorom bude byt dokončený.

4
Kúpna zmluva

Podpis zmluvy o prevode vlastníctva po dokončení bytu a uhradení kúpnej ceny.

B503

Podobné voľné byty

Byt

Podlažie

Izbovosť

Celková výmera

Balkón

Terasa

Stav

V predpredaji

Cena

Porovnanie

Byt

Podlažie

Izby

Výmera

V predpredaji

Cena

Porovnanie bytov

Byty na predaj Ružomberok Hríby

Kontakt

https://www.bytyhriby.sk/ochrana-sukromia/

    Chcete sa dozvedieť o Hríboch viac?

    Napíšte nám, radi vám zodpovieme všetky vaše otázky

    Ochrana osobných údalov

    Správa odoslaná

    Ďakujeme za záujem, budeme Vás kontaktovať.

    foto-predajcu@2x

    Ing. Juraj Trizna

    Predajca investora

    +421 918 176 750 info@bytyhriby.sk

    Predajné miesto

    vzorový byt na Bátorkách
    ul. K. Krčméryho 5785/53
    034 01 Ružomberok

     

    bytovka